




Title: Extension & Loft Conversion.
Description: Conversion of large town house to apartments.
Built cost: 165k
Location: East London
Description: Conversion of large town house to apartments.
Built cost: 165k
Location: East London

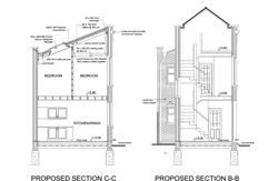
Title: Rear Two Storey Extension
Description: New rear two storey extension to listed building comprising two new spacious bedrooms.
Location: Enfield
Title: Various Projects
Description: Small conservation interventions to listed buildings including new stairs, new fireplaces, restoration of period features such as panelled doors with architraves, cornices and other mouldings.
Location: London
Description: Small conservation interventions to listed buildings including new stairs, new fireplaces, restoration of period features such as panelled doors with architraves, cornices and other mouldings.
Location: London

Title: New Built – Town House
Description: New 2/3 story semi-detached house in conservation area.
Built cost: 140k
Location: East London




